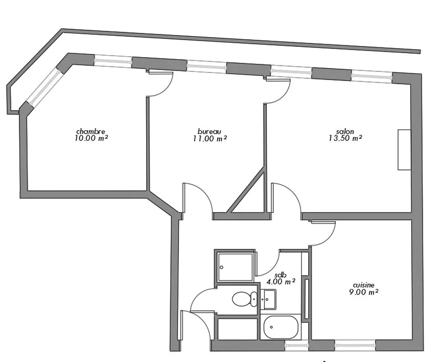
APPARTEMENT
Paris - 17e arrondissement
55m²
Cet appartement haussmannien peu pratique et à la décoration datée a fait l’objet d’une nouvelle distribution de ses pièces afin d’offrir à ses occupants un appartement idéalement pensé : un espace cuisine/séjour en lien direct avec le balcon filant, un espace chambre au calme donnant sur la cour à proximité de la salle de bains et un bureau qui s’est transformé depuis habilement en chambre d’enfant.